- Woonoppervlakte
- Circa 126 m²
- Perceeloppervlakte
- Circa 219 m²
- Bouwjaar
- Gebouwd in 2012
- Aantal kamers
- 5 kamers (4 slaapkamers)
SFEERVOLLE HOEKWONING MET GARAGE, TUIN AAN HET WATER EN ENERGIELABEL A
Ontdek deze prachtige HOEKWONING uit 2012 in de geliefde wijk Stad van de Zon. Met een woonoppervlakte van 126 m², vier slaapkamers, een moderne keuken, complete badkamer en een zonnige tuin met vlonder aan het water biedt deze woning alles wat je zoekt. Hier woon je in alle rust, met ruimte, duurzaamheid en volop comfort.
De woning is uitstekend onderhouden en instapklaar. In de woonkamer een mooie parketlaminaatvloer, openslaande deuren naar de tuin, een moderne keuken met inbouwapparatuur, volledige isolatie en maar liefst 12 zonnepanelen (energielabel A). Naast de woning bevindt zich een GARAGE met oprit en parkeergelegenheid op eigen terrein.
De ligging is perfect: in een rustige straat met uitsluitend bestemmingsverkeer, zicht op het water en volop speelgelegenheid in de buurt. Winkels en voorzieningen liggen op loopafstand en binnen enkele minuten fietsen bereik je zowel het Stadshart als het recreatiegebied Park van Luna met strand en water.
Nieuwsgierig? Check de EXCLUSIEVE EIGEN SITE VAN DE WONING (eilandvanmaui36.nl) voor meer informatie over de woning en de omgeving via de site van EV Wonen Makelaardij.
BEZICHTIGING: plan eenvoudig een afspraak via Funda of de website van EV Wonen Makelaardij. We laten deze bijzondere woning graag aan je zien!
Indeling:
BEGANE GROND:
Je komt binnen in de ruime hal met toilet, garderobe en trapopgang. De woonkamer is opvallend licht en royaal van opzet (bijna 10 meter diep en 5,17 meter breed), met een plafondhoogte van 2,65 meter. Dankzij de openslaande deuren staat de woonkamer in directe verbinding met de tuin en het water. Op de vloer ligt een parketlaminaat en onder de trap is een praktische bergkast aanwezig.
De keuken aan de voorzijde is compleet uitgerust met o.a. een 5-pits gaskookplaat, brede laden, combimagnetron, Siemens vaatwasser, Quookerkraan, koelkast, 4-laden vriezer, een bovenkast met liftsysteem en een ruim werkblad. Twee grote ramen tot aan de grond zorgen voor extra veel lichtinval.
1e VERDIEPING:
Hier vind je drie ruime slaapkamers, allen voorzien van laminaatvloeren en lichte wandafwerking. De badkamer is uitgevoerd met een ligbad, inloopdouche, wastafelmeubel met dubbele kranen, tweede toilet, designradiator en een groot raam. Een rustige en stijlvolle ruimte om te ontspannen.
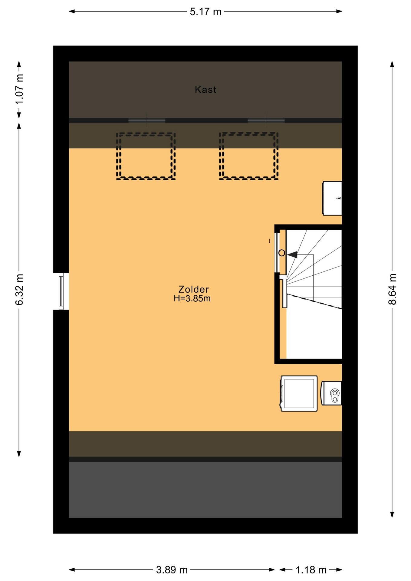
2e VERDIEPING:
Via de vaste trap bereik je de royale vierde slaapkamer met zijraam en twee dakramen, waardoor ook deze verdieping heerlijk licht is. Er is voor het gemak ook een extra wastafelmeubel met spiegelkast aanwezig.
Verder bevinden zich hier de aansluitingen voor de wasmachine/droger, de cv-installatie, de unit voor mechanische ventilatie en de omvormer van de zonnepanelen.
GARAGE & TUIN:
Naast de woning staat een stenen garage (ca. 19 m²) met elektrische deur, ideaal voor fietsen, hobby’s of extra bergruimte. Voor de garage op eigen terrein is plek voor de eigen auto.
De achtertuin is een heerlijke plek om te genieten: bijna 10 meter breed, voorzien van meerdere terrassen waaronder 1 van 3x3m met schaduwdoek-overkapping, een elektrisch zonnescherm en een steiger (5m2) aan het water waar je kunt ontspannen, een hengel uitgooien of een bootje aanleggen.
BIJZONDERHEDEN:
- Woonoppervlakte: ca. 126 m²
- Perceeloppervlakte: ca. 219 m²
- Bouwjaar 2012, volledig geïsoleerd
- Energielabel A met 12 zonnepanelen
- Waterontharder
- Moderne keuken met inbouwapparatuur
- Badkamer met ligbad
- Vier slaapkamers
- In 2024 buitenom geschilderd
- Garage met oprit en parkeren op eigen terrein
- Tuin met vlonder aan het water
- Nabij voorzieningen, NS-station en recreatiegebied Park van Luna
Aanvaarding: in overleg.
Een instapklare gezinswoning met ruimte, water en duurzaamheid op een toplocatie in Stad van de Zon. Maak snel een afspraak voor een bezichtiging en laat je verrassen door het wooncomfort dat deze woning te bieden heeft.
Overdracht
- Vraagprijs
- € 535.000 k.k.
- Status
- Verkocht
Bouw
- Object type
- Eengezinswoning, hoekwoning
- Soort bouw
- Bestaande bouw
- Bouwjaar
- 2012
- Soort dak
- Zadeldak bedekt met pannen
Oppervlakte en inhoud
- Woonoppervlakte
- 126 m²
- Perceeloppervlakte
- 219 m²
- Inhoud
- 541 m³
Indeling
- Aantal kamers
- 5 kamers (4 slaapkamers)
- Aantal badkamers
- 1 badkamer en 1 apart toilet
- Badkamervoorzieningen
- Dubbele wastafel, inloopdouche, ligbad, en toilet
- Aantal woonlagen
- 3 woonlagen
- Voorzieningen
- Buitenzonwering, dakraam, glasvezelkabel, mechanische ventilatie, TV kabel, en zonnepanelen
Energie
- Energielabel
- A
- Energielabel registratie
- 27-12-2020
- Isolatie
- Dakisolatie, dubbel glas, muurisolatie, vloerisolatie en volledig geïsoleerd
- Verwarming
- Cv-ketel
- Warm water
- Cv-ketel
- Cv ketel
- Intergas ( combiketel uit 2012, eigendom)
Buitenruimte
- Ligging
- Aan rustige weg, aan water en in woonwijk
- Tuin
- Achtertuin, voortuin en zijtuin
- Afmetingen achtertuin
- 73 m² (7,40 meter diep en 9,90 meter breed)
- ligging tuin
- Gelegen op het noorden bereikbaar via achterom
Garage
- Soort garage
- Aangebouwde stenen garage
- Capaciteit
- 1 auto
- Voorzieningen
- Elektrische deur en elektra
Parkeergelegenheid
- Soort parkeergelegenheid
- Op eigen terrein
Actueel energieverbruik
Energielabel deze woning
Energielabel A
Publicatie energielabel: 27-12-2020
Stroomverbruik per jaar
Eiland van Maui 36, Heerhugowaard
Gasverbruik per jaar
Eiland van Maui 36, Heerhugowaard
Indicatie hypotheeklasten
Eigen inleg:
Spaargeld / overwaarde
Rente:
Laagste 10-jaars rente
Laagste 10-jaars rente
2,98% - Centraal Beheer Groen... - NHG
3,25% - Centraal Beheer Groen... - 80%
Laagste 20-jaars rente
3,29% - Centraal Beheer Groen... - NHG
3,52% - Centraal Beheer Groen... - 80%
Laagste 30-jaars rente
3,41% - Centraal Beheer Groen... - NHG
3,74% - Centraal Beheer Groen... - 80%
Hypotheek:
Bruto maandlasten: € 0 p/m
Netto maandlasten: € 0 p/m
Hoe berekenen we dit?
Het rentepercentage is gebaseerd op de laagste 10 jaars vaste rente voor één hypotheekdeel. De vermelde rente (3.25% zonder NHG) is gecontroleerd op 06-01-2026. Deze berekening is gebaseerd op een annuïteitenhypotheek die volledig wordt afgelost, waarbij de maandlasten gedurende de gehele looptijd gelijk blijven. De werkelijke rente en netto maandlasten kunnen variëren, afhankelijk van uw persoonlijke situatie en de hypotheekverstrekker. Raadpleeg een financieel adviseur voor een nauwkeurige berekening en advies. Aan deze berekening kunnen geen rechten worden ontleend; het dient enkel als indicatie.
Documentatie
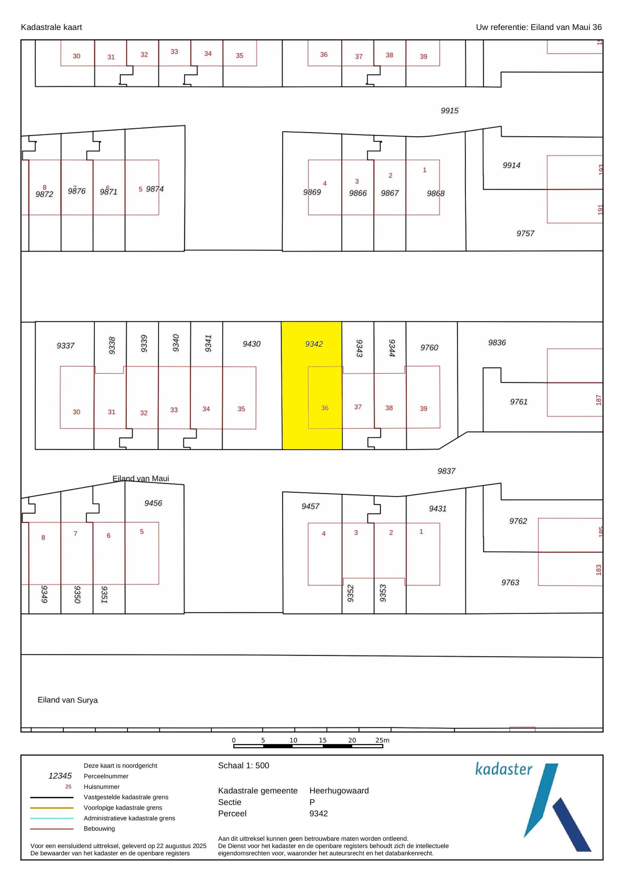
Kadastrale kaart
Leefomgeving
Brochure woning
Kadastrale kaart
BAG uittreksel
Lijst van zaken
Vragenlijst
Meetrapport
Bezoek onze website
Bezichtiging
Bod uitbrengen
Waardebepaling
Zoekopdracht
Alles downloaden
Zonnegrenzen bekijken
Op de kaart
Inwoners in Heerhugowaard
Cijfers voor postcodegebied 1705
- Totaal aantal inwoners
- 59045 inwoners
- Mannen
- 51%
- Vrouwen
- 49%
Inwoners in Heerhugowaard
Cijfers voor postcodegebied 1705
- tot 15 jaar
- 17%
- 15 tot 25 jaar
- 13%
- 25 tot 35 jaar
- 25%
- 45 tot 65 jaar
- 27%
- 65 en ouder
- 18%
Huishoudens in Heerhugowaard
Cijfers voor postcodegebied 1705
- Eenpersoons zonder kinderen
- 27%
- Meerpersoons zonder kinderen
- 23%
- Huishoudens zonder kinderen
- 50%
Huishoudens in Heerhugowaard
Cijfers voor postcodegebied 1705
- Huishoudens met één kind
- 9%
- Huishoudens met meerdere kinderen
- 41%
- Huishoudens met kinderen
- 50%
Woningen in Heerhugowaard
Cijfers voor postcodegebied 1705
- Woningen voor 1945
- 1%
- Woningen tussen 1945 en 1965
- 1%
- Woningen tussen 1965 en 1975
- 1%
- Woningen tussen 1975 en 1985
- 1%
- Woningen tussen 1985 en 1995
- 1%
Woningen in Heerhugowaard
Cijfers voor postcodegebied 1705
- Woningen tussen 1995 en 2005
- 69%
- Woningen tussen 2005 en 2015
- 28%
- Woningen na 2015
- 2%
- Huurwoningen
- 30%
- Koopwoningen
- 70%
Overige in Heerhugowaard
Cijfers voor postcodegebied 1705
- Gemiddelde WOZ waarde
- € 264.000,-
- Personen onder de 65 met uitkering
- 7%
Overige in Heerhugowaard
Cijfers voor postcodegebied 1705
- Adressen per km²
- 1752
- Stedelijkheid (schaal 1 op 5)
- 80%
Korte feiten over Heerhugowaard
Heerhugowaard is een plaats in de gemeente Dijk en Waard, in de regio West-Friesland in de Nederlandse provincie Noord-Holland. Heerhugowaard hoort historisch gezien niet bij Kennemerland maar valt wel onder de gemeentelijke samenwerkingsregio Kennemerland via Noord-Kennemerland.
Wie is EV Wonen Makelaardij?
Het verlaten van je oude woning of het ontdekken van je nieuwe droomhuis is een ongelooflijk opwindend proces voor de meeste van onze klanten. Er zijn zoveel besluiten te nemen en talloze factoren die invloed hebben op het behalen van het best mogelijke resultaat voor jou. Bovendien is de vraag naar woningen sterk gestegen en hebben de prijzen recordhoogtes bereikt.
In deze dynamische en vaak onvoorspelbare markt zijn wij de toonaangevende verkoopmakelaar in de regio, goed geïnformeerd over de lokale huizenmarkt en de verkoopmogelijkheden van jouw woning.
We hebben voor veel klanten uitstekende verkoop- of aankoopresultaten behaald. Wij volgen geen vaste methoden, omdat we geloven dat elke woning en verkoper uniek is. Bij ons kun je rekenen op een persoonlijke benadering. Ons succesgeheim is dat we alledaagse dingen buitengewoon goed uitvoeren.
Een huis met succes verkopen is geen eenvoudige taak. EV Wonen Makelaardij biedt:
– een solide verkoopstrategie;
– een eersteklas presentatie met altijd een toppositie op Funda;
– een gedreven en gecertificeerde Register Makelaar/Taxateur;
– proactief gebruik van sociale media;
– en een flinke portie lokale marktkennis.
Onze aanpak heeft de afgelopen jaren geleid tot een zeer hoge Funda klantbeoordeling van 9,5! Dit betekent dat klanten met een goed verkoopproces uitstekende verkoopresultaten hebben behaald.
We besteden veel aandacht aan jouw persoonlijke situatie en de specifieke kenmerken van jouw woning. Dit, in combinatie met een goede communicatie, garandeert een succesvol verkoop- of aankooptraject. Benieuwd wat we voor jou kunnen doen? We komen graag vrijblijvend langs voor advies op maat.
Naast Heerhugowaard zijn we ook actief als makelaar in Alkmaar, Oterleek, Langedijk, Hensbroek, Obdam en omgeving.
Wij kunnen je op een unieke en persoonlijke manier volledig ontzorgen als verkoopmakelaar of aankoopmakelaar bij de verkoop of aankoop van jouw woning.
Nieuwste reviews
-
Ter Braaklaan 36
Veel persoonlijk contact met de makelaar gehad. We wensten een hele snelle doorlooptijd, en daarom was veel heel strak gepland. Waarbij snel...
-
Frida Katzland 10
Alles verliep ver boven verwachting goed, soepel en professioneel. Van begin tot het einde fantastisch geregeld!
-
leo en corrie groot
Wat een geweldig team , staat er voor je klaar bij EV wonen , ze zijn kundig en goed op de hoogte , van de financiële afhandeling ,, en ze w...